4 min read

While the tenants of a large retail project destined for Westbrook are not yet known, one thing is certain – the project will generate a lot of traffic.

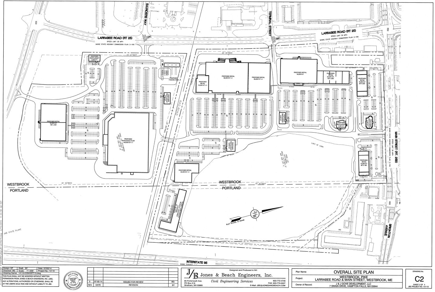
At the first meeting with state and local transportation officials Tuesday regarding the proposed 588,000-square-foot retail center between Main Street and Larrabee Road, questions centered on the project’s impact on surrounding intersections, as well as new traffic signals proposed for the site.

The project would be built on the parcel surrounding a Pike Industries gravel pit that has been an operating quarry since the 1940s. The developer, Jeffrey Gove of J&J Gove Development, told the American Journal in April that his concept plan included a mix of retail spaces, a wholesale club and restaurants.

About 20 people attended the meeting, including a few members of the public. When asked to elaborate on the potential tenants for the development, Gove said three major players are vying for the two largest retail spaces. While he didn’t want to reveal the identities of tenants, the potential wholesale club, he said, isn’t “hard to figure out,” given that there is already a Sam’s Club and BJ’s within a few miles. This would point to Costco, which doesn’t have a Maine location.

According to Jeff Dirk, a traffic engineer working on the development team, the retail project is expected to produce roughly 2,400 “new trips” to the site on a peak weekend afternoon.

Gove’s concept plan calls for four entrances to the site, including three new traffic signals. The new signals proposed include one on Main Street and two on Larrabee Road. It would also include a right turn in, and right turn out, of the development off the Westbrook Arterial.

Advertisement

For city officials, the proposed traffic signals are a point of concern. City Engineer Eric Dudley said putting two stoplights on Larrabee Road could disrupt the free-flowing nature of the road. He also questioned how many motorists would access the site from Larrabee Road instead of using the Main Street or Westbrook Arterial entrances.

“I would almost rather see a full intersection on the arterial,” he said, pointing out that the added signals would put a number of intersections in a relatively small area.

“From the city’s perspective, we’re pretty concerned with stopping traffic twice in such a small stretch of road,” said City Planner Molly Just.

Gove is working under a purchase and sale agreement with Pike, with the sale dependent on obtaining the necessary permits. These include approvals from the Maine Department of Transportation, which called the meeting Tuesday.

Tim Soucie, a traffic engineer for the Maine Department of Transportation, led the meeting, which he said was to determine what mitigation would be necessary on surrounding roads. This could include added traffic lights, lanes, striping and signage to help ease the excess flow of cars to and from the retail center.

“The first step is finding if that capacity is there,” Dirk said about studying the surrounding area. “If not, we need to propose improvements.”

Advertisement

Dudley also questioned the estimate from Dirk that 50 percent of traffic to the site will come from the Maine Turnpike. He said commuters tend to avoid tolls, which will cause more traffic to use County Road and Spring Street.

“I think Spring Street will end up with more traffic on it than we might believe,” he said.

Traffic engineers from Portland were also concerned for two nearby intersections, which they said were already in poor condition – one at the Barron Center off Brighton Avenue, as well as the intersection at the Portland-Westbrook line next to Denny’s. With the added traffic, improvements would need to take place.

Just said the choice of tenants would impact the amount of traffic at the site. If the retailers are unique to the area, she said, more people will come.

“There are three major anchors,” Gove said about the prospective tenants, also mentioning the interest of a major grocer and multiple restaurants.

Wally Camp, the president of Rowe Ford, located along Main Street, asked where the entrance to the parcel would be located on Main Street. Dirk said it would be directly across from the existing entrance to the Kohl’s plaza.

Soucie said the developer will use comments and concerns from the meeting to formulate an in-depth traffic study, which will then be reviewed by state traffic officials.

J&J Gove Development’s concept plan for the Pike property includes a mix of retail spaces, a wholesale club and restaurants. Courtesy image

Comments are no longer available on this story